Křivý byt
Netradiční avšak v zásadě velkorysou dispozici skutek architecture neměnili. Pouze jemnými modelacemi vznikl prostor, který posléze naplnili solitéry. A nakonec přidali velkou mapu!
							pokud Vás interiérový design a architektura skutečně zajímá, vytvořte si Homepix účet a my Vám každý týden zašleme email s výběrem nejlepších článků a fotek, které se zde publikovali.
							Netradiční avšak v zásadě velkorysou dispozici skutek architecture neměnili. Pouze jemnými modelacemi vznikl prostor, který posléze naplnili solitéry. A nakonec přidali velkou mapu!
Autor: skutek architecture
Realizace: 2015
Spolupráce: Petr Štěpán – Studio Najbrt
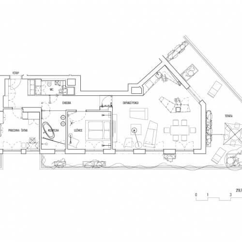
Byt na pražské Santince je charakteristický jedním základním neduhem - dlouhá chodba dosahuje až neuvěřitelných rozměrů a nevytváří zrovna příjemné prostředí. Špatný vstupní předpoklad se ale podařilo přetvořit na zajímavý prvek. Čisté bíle povrchy stěn jsou jen částečně narušovány vestavěným nábytkem – žádný dekor, sokly, úchytky a úzké spáry. Na konci je pak kontrastní tmavý portál značící vstup do obývacího pokoje. Zde hraje hlavní roli netradiční pojetí prostoru pro vaření. Ten je sice přímou součástí prostoru, ovšem zároveň je jasné vymezen dynamicky tvarovaným blokem skladování. Pracovní deska a skříňky mají navíc proměnlivou hloubku. Ve zbytku bytu je úmyslně použito co nejméně nábytku. Do prostoru jsou jako umělecké předměty umístěny výrazné solitéry.
Celek je doplněn grafickým designem Petra Štěpána ze Studia Najbrt. Velkoplošná mapa světa v obývacím pokoji je různě po bytě doplněna „směrovkami“ ukazujícími na místa, ke kterým má majitel osobní vztah.
„Nové automaticky neznamená lepší. Skutek architecture odvedli dobrou práci, jeden obecný fakt ale nezamaskovali. Domy stavěné v období panelové výstavby, ať už si o nich myslíme cokoliv a jistě mají své chyby, měli dispozice jednotlivých bytů obvykle vyřešeny kvalitně. Mnoho dnes stavěných bytů této úrovně zdaleka nedosahuje. Proč? Co je důvodem poklesu úrovně? Je to něčím kompenzováno?“
Pohovky jako dvě soky a výrazná lampa nad nimi jsou umístěny v bílém prostoru a na tmavé podlaze – jako exponáty. Jen drobné detaily trochu narušují zvláštně minimalistické pojetí hlavní místnosti bytu.
Čtyřúhelníkový hranol odděluje zónu vaření od zbytku pokoje. Ukrývá dvě police na knihy. Jeho geometrie je logicky napojena na všechny ostatní linky bytu. Okno napravo slouží kuchyni.
Nalevo je oddělující blok, který zároveň slouží jako skladovací prostor a pečící zóna. Naproti je pak zalomená kuchyňská linka – nesmírně sympatické a zdá se praktické řešení. Její hloubka je proměnlivá a navržena dle přísných ergonomických pravidel.
Koupelna, stejně jako všechny ostatní obslužné místnosti v bytě, je řešena velmi jednoduše v čistě bílých tónech. Můžeme zde vidět detaily v podobě grafických prvků. Takovéto detaily se v běžných interiérech moc nevidí!
Je neuvěřitelné, jak podlouhlý může být půdorys bytu. Architektům se však podařilo dobře se s netypickým původním stavem vyrovnat. Kromě interiéru stojí za pozornost i zpracování rozsáhlé terasy. Zeleň je shlukována do pravidelných ostrovů a doplněna posezením v rohu a na východní straně.
Dlouhá bílá hala zakončená tmavým portálem následuje hned o vstupu do bytu. Vjem prakticky nic neruší, vestavěný nábytek je přizpůsoben co nejsilnějšími dojmu. Po levé straně je wc, napravo pak koupelna a ložnice.